boston, ma - residential estate

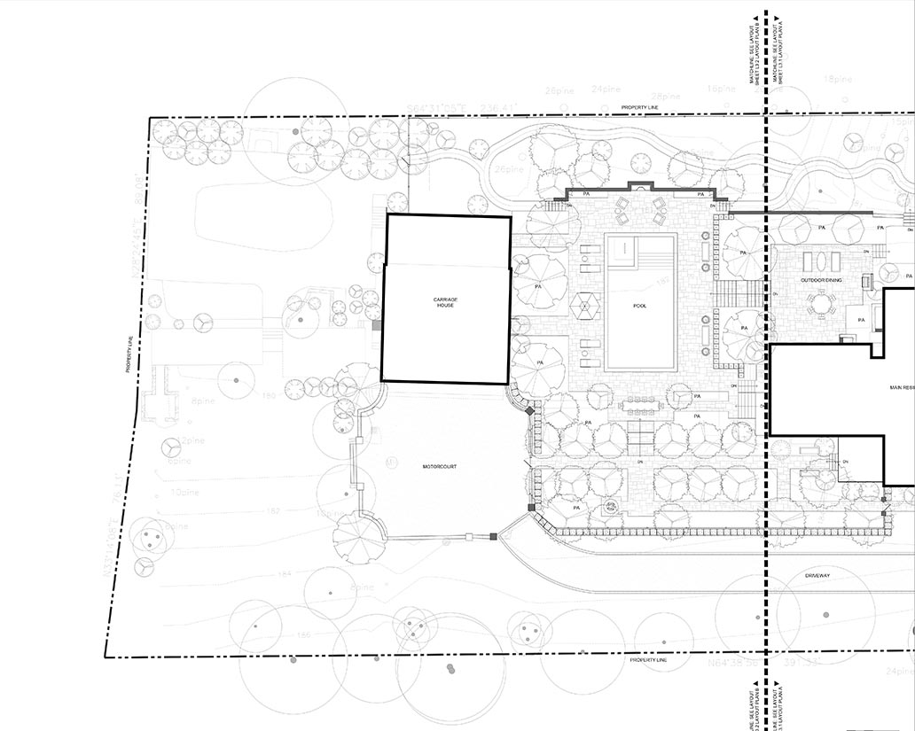
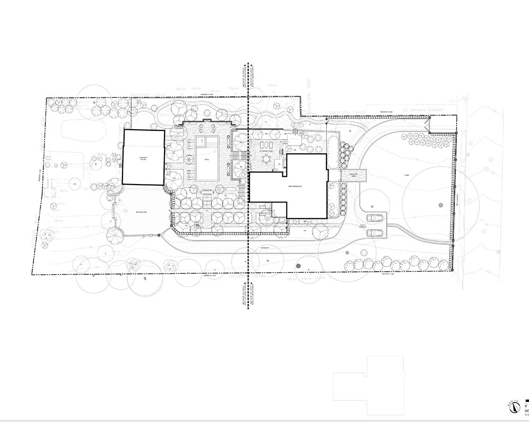
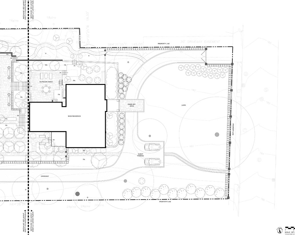
This Boston suburbs estate garden is designed as a cohesive, elegant landscape that unites architecture, circulation, and greenery into a timeless residential setting. A structured arrival sequence and gently curving drive are softened by layered tree plantings and generous lawns, creating a sense of privacy and scale appropriate to the neighborhood.

Formal garden spaces near the house transition into more relaxed lawns and perimeter plantings, with carefully positioned trees and hedges framing views and defining outdoor rooms. The outdoor living experience is anchored by a beautifully integrated pool and terrace designed for summer entertaining. Pathways and terraces support everyday living and entertaining, while the overall composition balances New England formality with natural softness, resulting in a refined, welcoming garden that matures beautifully over time.